Luxury Maisonette Vari – Athens Riviera

  • €1,640,000
Vari, Municipal Unit of Vari, Regional Unit of East Attica, Region of Attica, Decentralized Administration of Attica, 166 72, Greece
  • Maisonette, New Construction
  • Property Type
  • 304,07
  • 2026
  • Year Built
  • 4
  • Bedrooms
  • 3
  • Bathrooms
For Sale New construction
Luxury Maisonette Vari – Athens Riviera
Vari, Municipal Unit of Vari, Regional Unit of East Attica, Region of Attica, Decentralized Administration of Attica, 166 72, Greece
  • €1,640,000

Description

A refined two-level Luxury Mizonet located in Vari, one of the most desirable and fast-growing residential areas of the Athens Riviera. Designed for comfort, privacy and modern coastal living, the residence offers a total interior area of 304.07 sq.m. across two architecturally balanced levels, complemented by an exclusive 92.60 sq.m. outdoor area.
Just 2.1 km from the sea and 21.1 km from Athens International Airport, the property benefits from exceptional accessibility while maintaining a serene residential character.

As a ground-floor maisonette, it features a private independent entrance, providing complete autonomy within the building. The residence also includes a private internal elevator connecting both levels, as well as access to the building’s main elevator.
From the upper level, the property enjoys a pleasant sea view, reinforcing its connection to the nearby coastline and enhancing the overall sense of openness.


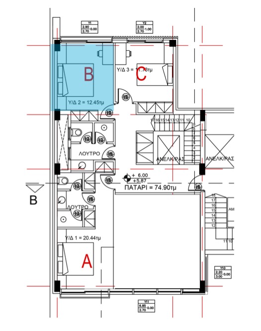
Interior Layout

Lower Level — 181.90 sq.m.

A large open-plan space ideal for a living area, entertainment room, office, wellness suite or guest bedrooms.
Fully linked to the upper floor by the maisonette’s private internal lift.

Upper Level — 122.17 sq.m.

Designed for everyday living, this level can host the main living room, dining area, kitchen and primary bedrooms.
Large openings bring natural light throughout the space, while elevated positioning allows for a sea view from this floor, providing a subtle but notable visual connection to the coast.


Outdoor Area — 92.60 sq.m. (Exclusive Use)


Key Features

  • Duplex maisonette (2 levels)

  • Private internal elevator

  • Independent private entrance

  • Total interior: 304.07 sq.m.

  • Exclusive outdoor area: 92.60 sq.m.

  • Storage room on a separate floor

  • Modern architecture & premium construction

  • Sea view from the upper level

  • Building with main elevator

  • Private Parking(2 cars)

Details

  • Distance From the Sea: 2100m
  • Swimming Pool: 28,35sqm

Floor Plans

image

Description:

image

Description:

Similar Listings

Compare listings

Compare
Avirta Real Estate Group
  • Avirta Real Estate Group